| 가용성 상태: | |
|---|---|
| 수량: | |
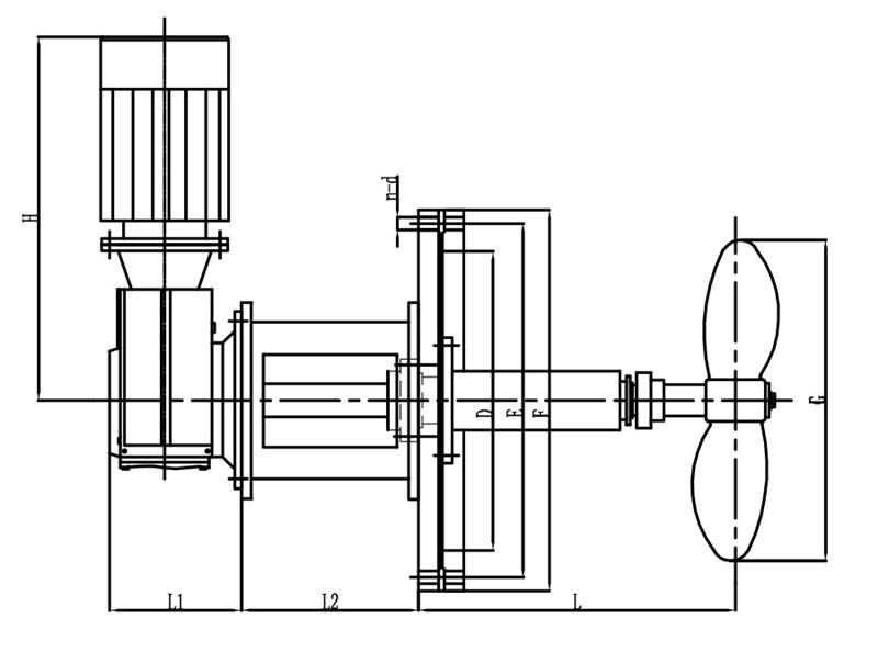
Keheng 측면 진입 탱크 믹서
측면 입구 교반기 믹서는 교반기 모터, 감속기, 임펠러 및 설치 시스템으로 구성됩니다.측면 입구 교반기 믹서는 열교환 공정, 오일 및 가스 저장 처리 공정에서 혼합, 교반 및 순환에 적합합니다.또한 측면 입구 교반기는 경관 순환을 위한 흐름 추진 장치로도 사용할 수 있으며, 이는 혼합을 통해 유체를 생성하여 부유 물질이 침전되는 것을 방지할 수 있습니다.
| 탱크 모델 | 원유탱크 |
| 믹서 유형 | 사이드엔트리 믹서 |
| 모터 브랜드 | ABB 또는 맞춤형 |
| 감속기 브랜드 | SEW 또는 맞춤형 |
| 임펠러 및 샤프트의 재질 | CS |
| 전압/위상/주파수 | 맞춤형 |
재료
재료는 다음과 같습니다.
Q235B, 45#, 고무가 포함된 탄소강, PO가 포함된 탄소강, PTFE가 포함된 탄소강, FRP가 포함된 탄소강, 탄소강 에나멜, 304 SS, 316L SS, 2205 이중 스테인레스 강, 2507 이중 스테인레스 강, 904L 슈퍼 오스테나이트 스테인레스 강 , 1.4529
노트: 모든 믹서 부품의 재질은 현지 작업 조건, 혼합 매체 및 고객 요구 사항에 따라 맞춤 제작할 수 있습니다.
직접 연결 구조로 설계되었습니다.
컴팩트한 구조, 낮은 에너지 소비, 편리한 작동 및 설치, 편리한 유지 관리 및 긴 서비스 수명을 갖추고 있습니다.
임펠러는 고정밀, 큰 추력, 단순하고 아름다운 선형 및 감기 방지 기능을 갖춘 정밀 주조 또는 스탬핑 성형을 채택합니다.
주요 애플리케이션
균질성 유지
균일한 사양을 보장하기 위해 정유소 완제품 또는 중간 제품 또는 화학 공장 공급 원료의 균질성을 유지합니다.이를 위해서는 상단, 중간 및 하단의 제품이 사양에 따라 균일하게 유지되도록 탱크 주위의 순환뿐만 아니라 위에서 아래로의 '전환'으로 탱크 전체의 완전한 움직임이 필요합니다.
블렌딩
특정 요구 사항에 따라 지정된 시간 내에 균질한 혼합을 얻기 위해 두 개 이상의 서로 다른 구성 요소를 혼합하려면 위에서 아래로 완전한 '회전율'이 필요합니다.
온도 균일성
가열 또는 냉각하는 동안 열 전달을 돕거나 온도 균일성을 유지하려면 다시 완전한 유체 운동, 위에서 아래로의 '전환'이 일반적으로 필요합니다.가열 요소에 대한 믹서의 위치도 작업 성공에 중요합니다.
결합된 임무
하나 이상의 의무가 특정 용도에 적용될 수 있으며 가장 중요한 의무에 따라 믹서 선택이 결정되어야 합니다.
일반적으로 가장 힘이 많이 필요한 작업은 블렌딩입니다.
믹서는 귀하의 요구 사항에 따라 맞춤 설정할 수 있습니다!
현장 서비스
KEHENG은 거의 30년의 경험을 가지고 있습니다.우리 회사는 현장 진단 및 수리 서비스를 제공할 수 있습니다.기술 팀은 귀하의 혼합 작업을 지원하기 위해 다양한 현장 유지 관리 옵션을 제공합니다.
설치: 고객 사양에 따르면
현장상담 및 수리: KEHENG은 현장 수리 진단 서비스를 제공합니다.현장에서 문제를 해결할 수 없는 경우 장비를 당사 검사 및 수리 부서로 반송할 수 있습니다.
사전 정비: 모든 기계는 나가기 전에 엄격한 검사를 통과해야 합니다.KEHENG은 혼합 솔루션과 장비의 최고 성능을 보장하기 위해 진단 및 벤치마크 테스트를 제공할 것입니다.
기타 서비스: KEHENG는 귀하의 재건 프로젝트를 위한 새로운 혼합 솔루션과 장비를 제공할 수 있습니다.
수리 서비스
KEHENG은 상단 입구 믹서 드라이브를 수리하기 위한 가장 포괄적인 분석 및 옵션을 제공하며 검사 및 수리 프로그램은 다음을 제공합니다.
1. 신뢰성 및 신뢰성 향상
2. 엄격한 사양을 충족하는 고품질 수리
3. 장비 수명 연장
믹서 드라이브의 모든 부품을 철저하게 청소하고 검사하여 고장의 실제 근본 원인을 파악합니다.수리를 위한 계층화된 옵션과 함께 자세한 보고가 제공됩니다.고객은 자신의 운영 요구에 맞는 적절한 수리를 선택합니다.선택한 수리 옵션에 따라 보증이 제공됩니다.
해결될 수 있는 일반적인 문제는 다음과 같습니다.
1. 기계적 피로
2. 혼란스러운 상황
3. 충격하중
4. 프로세스 변경
5. 임펠러 밸런스
고객 서비스
1. 모든 KEHENG 고객은 판매 전후에 지원과 제안을 받게 됩니다.
2. KEHENG이 제공하는 서비스는 고객이 가장 적합한 제품을 선택할 수 있도록 돕는 것을 목표로 합니다.
3. KEHENG은 계획, 설치, 교육, 문제 제거, 유지 관리 및 수리, 혁신 및 현대화 등 고객이 제품을 올바르게 사용할 수 있도록 돕습니다.
4. KEHENG 제공: 예비 부품 공급, 기술 개발 및 최신 기술, 고객 재고 최적화 및 예비 부품 추천.
기술적 지원
KEHENG는 풍부한 경험과 광범위한 지식을 갖춘 응용 엔지니어로 구성된 전체 직원을 보유하고 있습니다.우리 기술팀은 기술 지원 엔지니어, 제품 설계 및 개발 엔지니어로 구성되어 있습니다.이들은 신속하고 신뢰할 수 있는 서비스와 조언을 제공할 수 있는 전문 지식과 기술을 갖추고 있습니다.그들은 영업 엔지니어와 협력하여 의사소통을 완료할 것입니다.응용 엔지니어는 드라이브 유형, 드라이브 비율, 모터 장착 요구 사항, 드라이브 장착 요구 사항, 기계적 씰 및 모터와 같은 특수 항목, 교반기 샤프트, 임펠러 허브 및 임펠러 블레이드 세부 정보를 지정할 수 있습니다.
필요한 경우, KEHENG은 귀하의 직원이 특정 KEHENG 장비의 특징을 숙지하고 자격을 갖추도록 하기 위해 다음과 같은 교육 및 지침을 지원할 수 있습니다.
1. 운영교육
2. 유지보수 교육
3. 프로세스 교육
JiangSu KeHeng Petrochemical & Electrical Machinery Co., Ltd는 1989년에 설립되었으며 전문 R&D, 설계, 제조 및 설치를 전문으로 하는 하이테크 기업입니다.주로 석유화학 가열로, 폐열 회수 시스템, 발전소 탈황 장비, 폐수 처리 시스템, 믹서 등에 종사합니다. 제품은 중국 전역에 판매되며 동남아시아, 유럽, 아프리카, 중동, 일본, 인도, 카자흐스탄, 터키 및 기타 여러 국가.
Q : 무역 회사입니까 아니면 제조업체입니까?
A: 우리는 제조업체입니다.우리 공장은 장쑤성에 있습니다. Q: 교반기와 믹서를 맞춤 설정하는 방법은 무엇입니까? A: 우리에게 응용 프로그램 매개변수를 보내거나 우리가 제공한 양식을 작성하면 우리는 귀하와 귀하의 비즈니스에 가장 적합한 제품을 선택하거나 디자인할 것입니다. Q: 생산 리드타임은 얼마나 되나요? A: 일반적으로 30일입니다.선택할 특정 모터 브랜드가 있는 경우 리드 타임이 다를 수 있습니다. Q: 제품 보증에 대해? A: 일반적으로 판매된 제품에 대해 1년 보증을 제공하지만, 장기적인 관계를 유지하기 위해 필요할 경우 평생 서비스를 제공할 수도 있습니다.
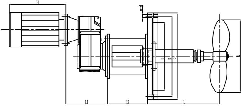
Keheng 측면 진입 탱크 믹서
측면 입구 교반기 믹서는 교반기 모터, 감속기, 임펠러 및 설치 시스템으로 구성됩니다.측면 입구 교반기 믹서는 열교환 공정, 오일 및 가스 저장 처리 공정에서 혼합, 교반 및 순환에 적합합니다.또한 측면 입구 교반기는 경관 순환을 위한 흐름 추진 장치로도 사용할 수 있으며, 이는 혼합을 통해 유체를 생성하여 부유 물질이 침전되는 것을 방지할 수 있습니다.
| 탱크 모델 | 원유탱크 |
| 믹서 유형 | 사이드엔트리 믹서 |
| 모터 브랜드 | ABB 또는 맞춤형 |
| 감속기 브랜드 | SEW 또는 맞춤형 |
| 임펠러 및 샤프트의 재질 | CS |
| 전압/위상/주파수 | 맞춤형 |
재료
재료는 다음과 같습니다.
Q235B, 45#, 고무가 포함된 탄소강, PO가 포함된 탄소강, PTFE가 포함된 탄소강, FRP가 포함된 탄소강, 탄소강 에나멜, 304 SS, 316L SS, 2205 이중 스테인레스 강, 2507 이중 스테인레스 강, 904L 슈퍼 오스테나이트 스테인레스 강 , 1.4529
노트: 모든 믹서 부품의 재질은 현지 작업 조건, 혼합 매체 및 고객 요구 사항에 따라 맞춤 제작할 수 있습니다.
직접 연결 구조로 설계되었습니다.
컴팩트한 구조, 낮은 에너지 소비, 편리한 작동 및 설치, 편리한 유지 관리 및 긴 서비스 수명을 갖추고 있습니다.
임펠러는 고정밀, 큰 추력, 단순하고 아름다운 선형 및 감기 방지 기능을 갖춘 정밀 주조 또는 스탬핑 성형을 채택합니다.
주요 애플리케이션
균질성 유지
균일한 사양을 보장하기 위해 정유소 완제품 또는 중간 제품 또는 화학 공장 공급 원료의 균질성을 유지합니다.이를 위해서는 상단, 중간 및 하단의 제품이 사양에 따라 균일하게 유지되도록 탱크 주위의 순환뿐만 아니라 위에서 아래로의 '전환'으로 탱크 전체의 완전한 움직임이 필요합니다.
블렌딩
특정 요구 사항에 따라 지정된 시간 내에 균질한 혼합을 얻기 위해 두 개 이상의 서로 다른 구성 요소를 혼합하려면 위에서 아래로 완전한 '회전율'이 필요합니다.
온도 균일성
가열 또는 냉각하는 동안 열 전달을 돕거나 온도 균일성을 유지하려면 다시 완전한 유체 운동, 위에서 아래로의 '전환'이 일반적으로 필요합니다.가열 요소에 대한 믹서의 위치도 작업 성공에 중요합니다.
결합된 임무
하나 이상의 의무가 특정 용도에 적용될 수 있으며 가장 중요한 의무에 따라 믹서 선택이 결정되어야 합니다.
일반적으로 가장 힘이 많이 필요한 작업은 블렌딩입니다.
믹서는 귀하의 요구 사항에 따라 맞춤 설정할 수 있습니다!
현장 서비스
KEHENG은 거의 30년의 경험을 가지고 있습니다.우리 회사는 현장 진단 및 수리 서비스를 제공할 수 있습니다.기술 팀은 귀하의 혼합 작업을 지원하기 위해 다양한 현장 유지 관리 옵션을 제공합니다.
설치: 고객 사양에 따르면
현장상담 및 수리: KEHENG은 현장 수리 진단 서비스를 제공합니다.현장에서 문제를 해결할 수 없는 경우 장비를 당사 검사 및 수리 부서로 반송할 수 있습니다.
사전 정비: 모든 기계는 나가기 전에 엄격한 검사를 통과해야 합니다.KEHENG은 혼합 솔루션과 장비의 최고 성능을 보장하기 위해 진단 및 벤치마크 테스트를 제공할 것입니다.
기타 서비스: KEHENG는 귀하의 재건 프로젝트를 위한 새로운 혼합 솔루션과 장비를 제공할 수 있습니다.
수리 서비스
KEHENG은 상단 입구 믹서 드라이브를 수리하기 위한 가장 포괄적인 분석 및 옵션을 제공하며 검사 및 수리 프로그램은 다음을 제공합니다.
1. 신뢰성 및 신뢰성 향상
2. 엄격한 사양을 충족하는 고품질 수리
3. 장비 수명 연장
믹서 드라이브의 모든 부품을 철저하게 청소하고 검사하여 고장의 실제 근본 원인을 파악합니다.수리를 위한 계층화된 옵션과 함께 자세한 보고가 제공됩니다.고객은 자신의 운영 요구에 맞는 적절한 수리를 선택합니다.선택한 수리 옵션에 따라 보증이 제공됩니다.
해결될 수 있는 일반적인 문제는 다음과 같습니다.
1. 기계적 피로
2. 혼란스러운 상황
3. 충격하중
4. 프로세스 변경
5. 임펠러 밸런스
고객 서비스
1. 모든 KEHENG 고객은 판매 전후에 지원과 제안을 받게 됩니다.
2. KEHENG이 제공하는 서비스는 고객이 가장 적합한 제품을 선택할 수 있도록 돕는 것을 목표로 합니다.
3. KEHENG은 계획, 설치, 교육, 문제 제거, 유지 관리 및 수리, 혁신 및 현대화 등 고객이 제품을 올바르게 사용할 수 있도록 돕습니다.
4. KEHENG 제공: 예비 부품 공급, 기술 개발 및 최신 기술, 고객 재고 최적화 및 예비 부품 추천.
기술적 지원
KEHENG는 풍부한 경험과 광범위한 지식을 갖춘 응용 엔지니어로 구성된 전체 직원을 보유하고 있습니다.우리 기술팀은 기술 지원 엔지니어, 제품 설계 및 개발 엔지니어로 구성되어 있습니다.이들은 신속하고 신뢰할 수 있는 서비스와 조언을 제공할 수 있는 전문 지식과 기술을 갖추고 있습니다.그들은 영업 엔지니어와 협력하여 의사소통을 완료할 것입니다.응용 엔지니어는 드라이브 유형, 드라이브 비율, 모터 장착 요구 사항, 드라이브 장착 요구 사항, 기계적 씰 및 모터와 같은 특수 항목, 교반기 샤프트, 임펠러 허브 및 임펠러 블레이드 세부 정보를 지정할 수 있습니다.
필요한 경우, KEHENG은 귀하의 직원이 특정 KEHENG 장비의 특징을 숙지하고 자격을 갖추도록 하기 위해 다음과 같은 교육 및 지침을 지원할 수 있습니다.
1. 운영교육
2. 유지보수 교육
3. 프로세스 교육
JiangSu KeHeng Petrochemical & Electrical Machinery Co., Ltd는 1989년에 설립되었으며 전문 R&D, 설계, 제조 및 설치를 전문으로 하는 하이테크 기업입니다.주로 석유화학 가열로, 폐열 회수 시스템, 발전소 탈황 장비, 폐수 처리 시스템, 믹서 등에 종사합니다. 제품은 중국 전역에 판매되며 동남아시아, 유럽, 아프리카, 중동, 일본, 인도, 카자흐스탄, 터키 및 기타 여러 국가.
Q : 무역 회사입니까 아니면 제조업체입니까?
A: 우리는 제조업체입니다.우리 공장은 장쑤성에 있습니다. Q: 교반기와 믹서를 맞춤 설정하는 방법은 무엇입니까? A: 우리에게 응용 프로그램 매개변수를 보내거나 우리가 제공한 양식을 작성하면 우리는 귀하와 귀하의 비즈니스에 가장 적합한 제품을 선택하거나 디자인할 것입니다. Q: 생산 리드타임은 얼마나 되나요? A: 일반적으로 30일입니다.선택할 특정 모터 브랜드가 있는 경우 리드 타임이 다를 수 있습니다. Q: 제품 보증에 대해? A: 일반적으로 판매된 제품에 대해 1년 보증을 제공하지만, 장기적인 관계를 유지하기 위해 필요할 경우 평생 서비스를 제공할 수도 있습니다.